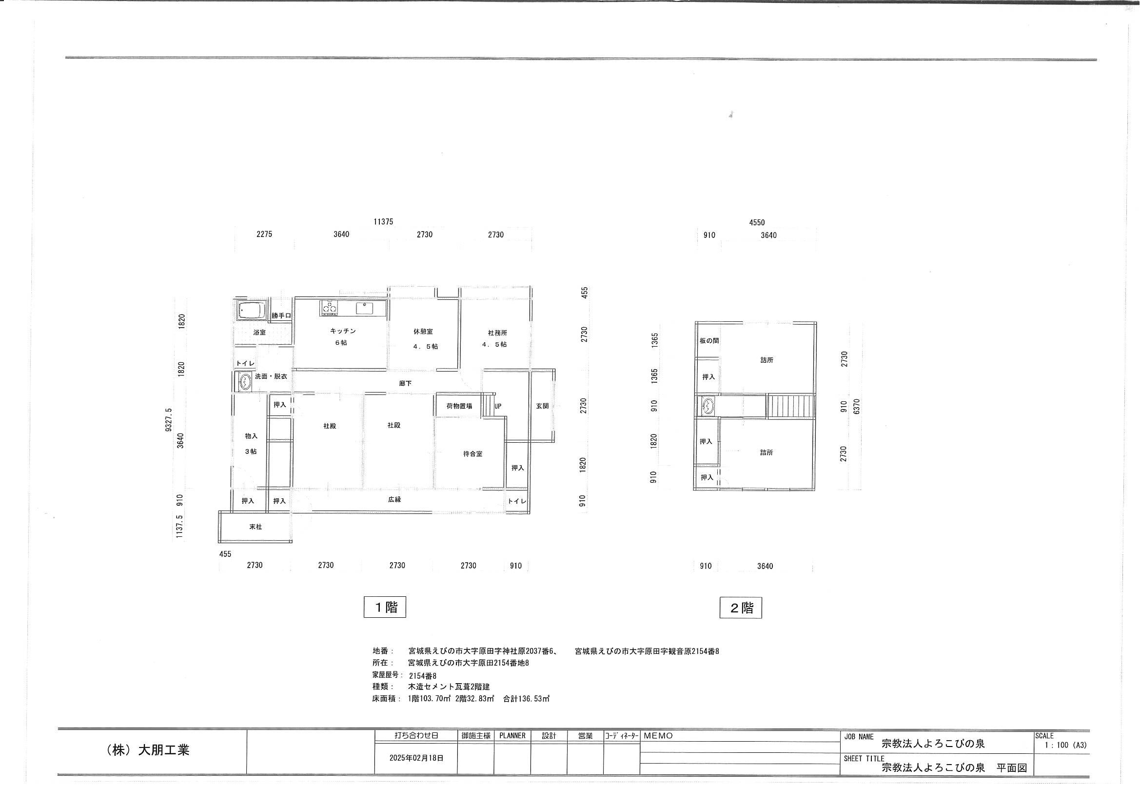
よろこびの泉























v